5747 Caithness Pl, Colorado Springs, CO 80923
Toggle Navigation
Images
Videos
Floor Plans
3D Tour
Map
5747 Caithness Pl
Colorado Springs, CO 80923
Scroll to Content
Images
Slideshow
Photo Grid
Hide
Previous
Next
Show more
Videos
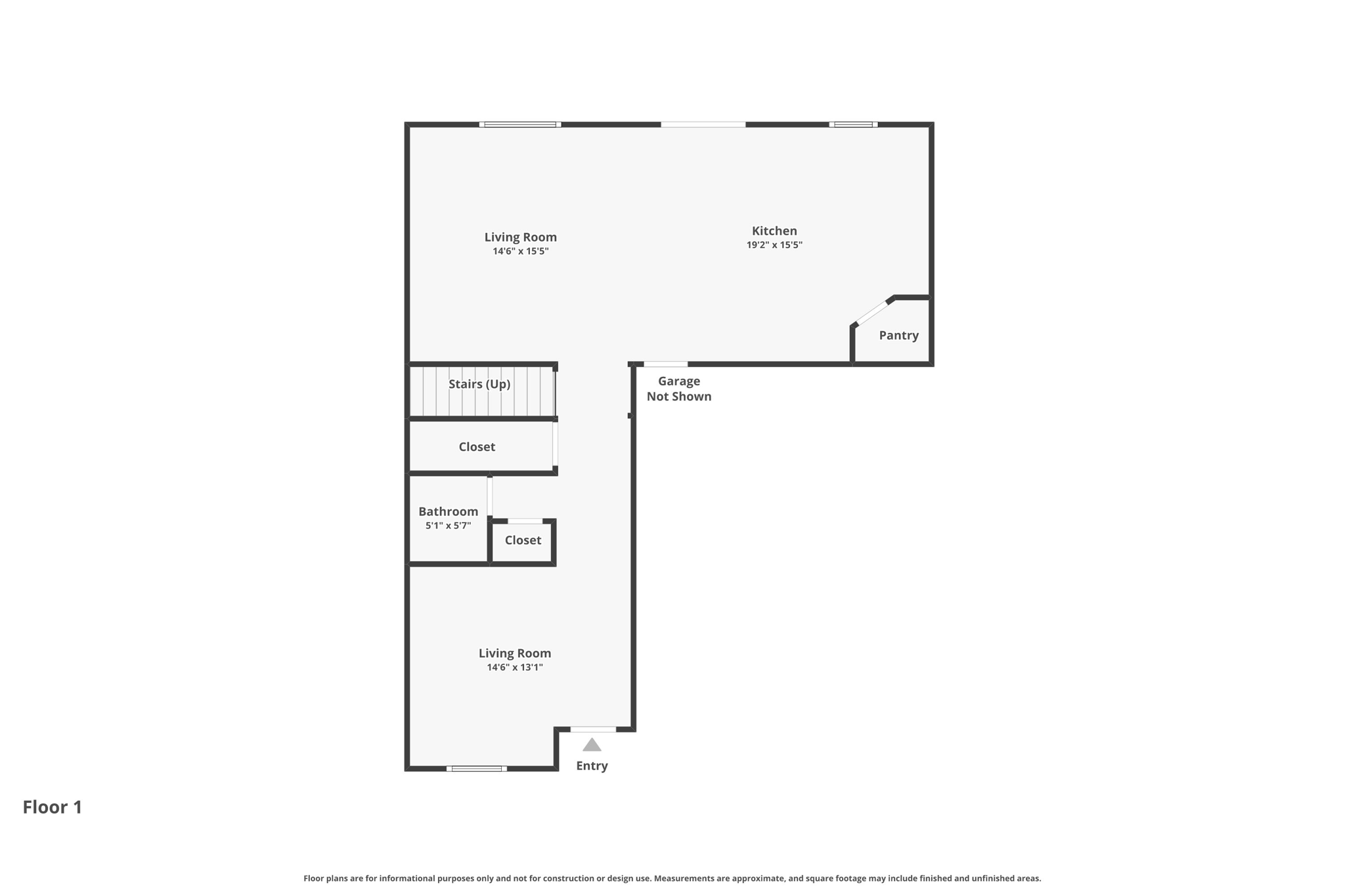
Floor Plans
Slideshow
Photo Grid
Hide
Previous
Next
3D Tour